Telephone, television and other electric equipment installation details dwg file
Description
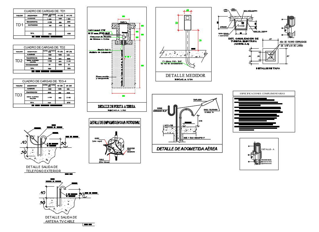
Telephone, television and other electric equipment installation details that includes a detailed view of complementry specifications, details of exterior telephone output, channeling electrical pipe and much more of electrical installation details.
Uploaded by:

